Stara cesta 13
1356 Dobrova
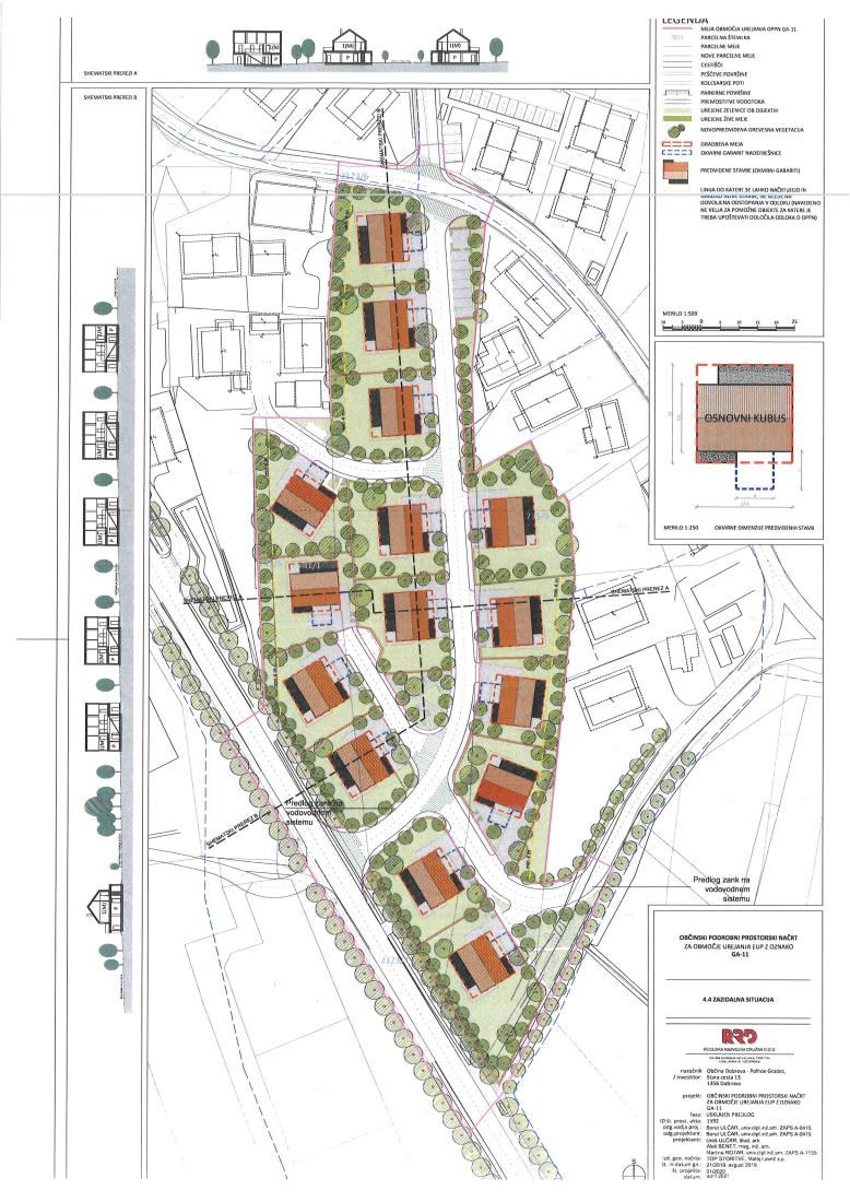
Člani občinskega sveta Občine Dobrova - Polhov Gradec so letos na junijski seji potrdili Odlok o občinskem podrobnem prostorskem načrtu za območje enote urejanja prostora GA-11 (OPPN GA-11), ki se nanaša na izgradnjo stanovanjskega kompleksa na parcelah oz. delu parcel 735/5, 739/1, 739/2, 740, 741/1, 741/5, 765/2, 765/5, 766/2, 766/41, 2123/3 in 2123/6, vse k. o. Šujica. Potrditev odloka na seji je sledila lanski javni razgrnitvi in javni obravnavi osnutka podrobnega prostorskega načrta za vse občane in zainteresirane posameznike, kjer so bile v največji možni meri upoštevane podane pripombe in predlogi občanov ter lastnikov zemljišč. Občina Dobrova - Polhov Gradec se je z lastniki zemljišč na območju GA-11 sestala že pred samim pričetkom priprave novega občinskega podrobnega prostorskega načrta (OPPN), ter tudi pred nedavnim.
Z OPPN se določajo merila in pogoji za posege v prostor na obravnavanem območju, ki je že vrsto let stavbno zemljišče – kot tako je bilo določeno že pred uveljavitvijo občinskega prostorskega načrta leta 2013. OPPN pa hkrati predstavlja podlago za pripravo projektov za izdajo gradbenih dovoljenj. OPPN lastnikov zemljišč ne obvezuje k gradnji, temveč le določa merila za potencialni poseg v prostor, dejanska izvedba prostorske ureditve pa je odvisna od interesa lastnika zemljišča. Nekatere izmed parcel so trenutno v zasebni lasti, nekatere pa ima v lasti Občina Dobrova - Polhov Gradec.
Po uveljavitvi OPPN v katastrski občini Šujica oz. v južnem delu naselja Gabrje, je na območju dovoljena postopna gradnja novega stanovanjskega naselja s 15 prostostoječimi enodružinskimi stanovanjskimi stavbami in pripadajočo infrastrukturo. Podoba predvidenega naselja je skladna z veduto okoliških naselij, saj nikakor ne gre za naselje z visoko gostoto pozidanosti. Približno 1,5 ha veliko območje je s treh strani obkroženo z obstoječimi stanovanjskimi zgradbami, z ene strani pa ga omejuje regionalna cesta R3-641/1369 Ljubljanica–Ljubljana. Prostorski načrt predvideva gradnjo hiše na parcelah velikosti od 550 do 800 m2, s kar štirimi parkirnimi mesti ob objektu. Ureditev novega naselja pa predvideva še manjšo zeleno parkovno ureditev, prometno ureditev in izgradnjo komunalne in prometne infrastrukture v okviru stanovanjskega kompleksa.
Kaj je naslednji korak do izgradnje načrtovanega naselja? Občina Dobrova - Polhov Gradec bo predvidoma do konca novembra ponovila javno dražbo za prodajo občinskega zemljišča in pristopila k iskanju investitorja za gradnjo stanovanjskega kompleksa. Investitor namreč še ni bil izbran, zanimanja za gradnjo pa je veliko.
Vabljeni, da si predstavitveni film naselja - OPPN GA11 Šujica ogledate tudi na povezavi: https://www.youtube.com/watch?v=krlAUASKF_o
Celoten Odlok o občinskem podrobnem prostorskem načrtu za območje enote urejanja prostora GA-11 (OPPN GA-11) je dostopen na povezavi: https://www.dobrova-polhovgradec.si/act/57862