V sredo, 21. oktobra 2020, je potekala javna obravnava Občinskega podrobnega prostorskega načrta za območje enote urejanja prostora GA-11 (OPPN GA-11), ki obravnava najjužnejši del naselja Gabrje oz. parcele ali dele parcel 735/5, 739/2, 740, 741/1, 741/5, 765/5, 2123/3 in 2123/6, vse k.o. Šujica. Dopolnjeni osnutek, ki ga je izdelalo podjetje RRD, Regionalna razvojna družba, d.o.o., je bil od 5. oktobra do 5. novembra 2020 na voljo za vpogled tudi v prostorih Občine Dobrova - Polhov Gradec. Sočasno s potekom javne razgrnitve pa so občani imeli tudi čas za oddajo pripomb in predlogov.
Javne obravnave namenjene vsem zainteresiranim občanom se je udeležilo samo nekaj lastnikov zemljišč, ki mejijo na območje, ki ga ureja OPPN GA-11. Prisotne sta nagovorila župan Franc Setnikar in Martina Rotar, predstavnica podjetja RRD, Regionalna razvojna družba, d.o.o. Slednja je prisotnim najprej predstavila sam postopek sprejemanja OPPN in njegov namen – z OPPN se določajo merila in pogoji za posege v prostor v obravnavanem območju in predstavljajo podlago za pripravo projektov za izdajo gradbenih dovoljenj po predpisih o graditvi objektov ter podlago za gradnjo nezahtevnih in enostavnih objektov.
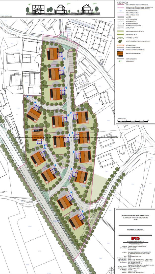
V nadaljevanju je Martina Rotar predstavila zasnovo novega stanovanjskega naselja v Gabrju, ki ga bo predvidoma obsegalo 15 prostostoječih enodružinskih hiš, lociranih na večjih parcelah velikosti od 550 do 800 m2, s kar štirimi parkirnimi mesti na hišo. Ureditev novega naselja pa predvideva še manjšo zeleno parkovno ureditev, prometno ureditev in izgradnjo komunalne in prometne infrastrukture v okviru stanovanjskega kompleksa. Glede na načrtovano ureditev je razvidno, da nikakor ne gre za naselje z visoko gostoto pozidanosti. OPPN GA-11 bo tako ohranjal avtohtono veduto naše občine, hkrati pa poskrbel za njen razvoj.
Vabljeni, da si Predstavitveni film naselja - OPPN GA11 Šujica ogledate tudi na povezavi: